Nous assurons également la réalisation du bilan RE2020 et l'obtention de l'attestation à la création d'un assainissement non collectif (SPANC).
Nous vous conseillons pour vos travaux, vos devis et dans le choix d'artisans qualifiés, proches de chez vous.
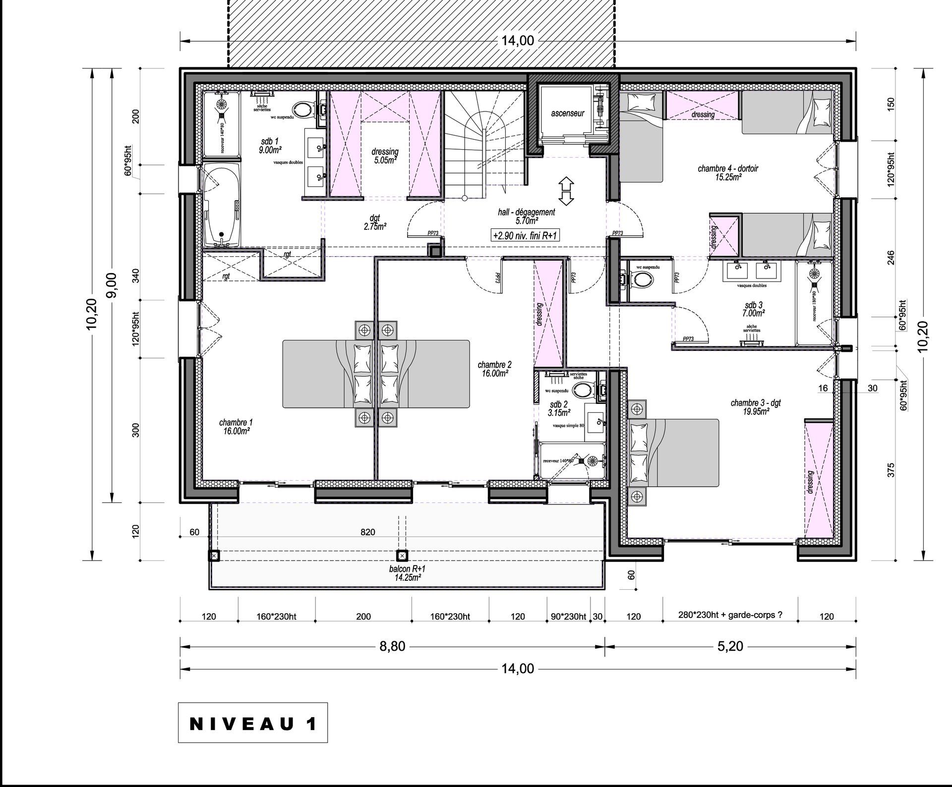
P E R M I S D E C O N S T R U I R E
De créer ou de finaliser les plans d'aménagement intérieur de votre projet.
D'établir le dossier complet de demande de permis de construire ainsi que le CERFA.
D'assurer le suivi administratif de la demande jusqu'à l'obtention du permis, sans frais supplémentaires.
D’assurer la prise en charge du bilan thermique et de l'attestation de conformité SPANC, si votre projet le nécessite.
Pour l’obtention de vos devis nous pouvons également vous mettre en relation avec des artisans avec qui nous travaillons régulièrement.
A SAVOIR:
Lorsque vous déposez une demande de permis de construire, vous devez fournir, en plus des documents obligatoires:
-Un bilan RE2020 si votre construction ou extension dépasse 50m².
-Une attestation de conformité de votre assainissement non collectif si vous ne pouvez pas vous raccorder au réseau public.
Cette attestation est fournie par le SPANC (service public d'assainissement non collectif) et nécessite en amont une étude hydrogéologique de votre terrain.
L'instruction de votre dossier ne pourra se faire sans ces deux documents.
Nous travaillons régulièrement avec un thermicien et un hydrogéologue et pouvons vous mettre en relation le cas échéant.
+ insertion paysagère PCMI6-7-8









